푸터 영역 바로가기 컨텐츠 바로가기 푸터 영역 바로가기
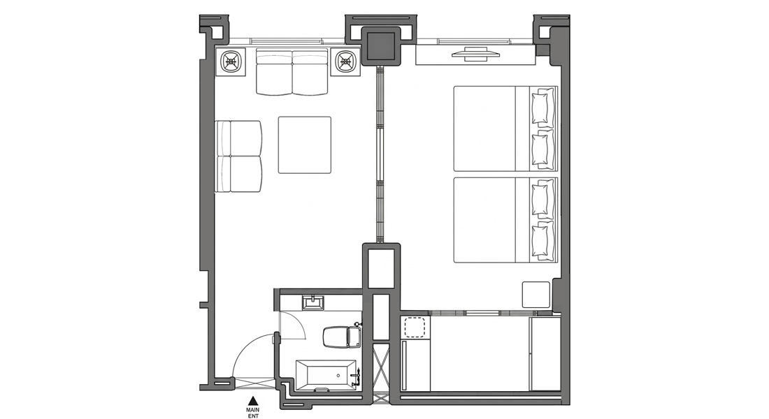
디럭스 스위트 온돌

넓고 여유로운 공간, 온기를 더하는 바닥 난방 시스템, 두툼한 세미더블 토퍼까지
아이를 동반한 가족단위 고객을 위한 편안한 휴식을 제공합니다.

  1. 투숙인원
    4인 (최대 5인, 침구 추가 시 가능)
    침대타입
    -
    객실
    침실, 거실, 화장실, 욕조
  2. 면적
    60m2 (18평)
    전망
    시티뷰
    체크인
    15:00
    체크아웃
    11:00
  3. 문의/예약
    예약문의 아이콘1644-8005 예약문의 아이콘ulsan@lahanhotels.com
객실 어메니티
  1. 스탠드 조명 탁자
  2. 간이쇼파 구두 클리너 무료 WIFI
  3. 냉장고 생수 2 차와 커피
  4. 비데 헤어드라이어
  5. 머리빗 면봉&화장솜
  6. 다회용 어메니티 5종 (샴푸, 컨디셔너, 바디워시, 바디로션, 핸드워시)
유/무료 혜택
객실 이용혜택
베이비크립 요청 시 무료대여 (선착순 한정)
구글 크롬캐스트 무료대여 (선착순 한정)
한실 이불(1인용) 유료대여 ※ 객실당(1박) +40,000원
룸서비스 이용가능 (06:00 ~ 22:00)메뉴보기
부대시설 이용혜택
실내 수영장 유료 이용
휘트니스 무료 이용
사우나 50% 할인
투숙기간 내 무료주차 (전기차충전소 5unit)
안내사항
  1. 시설에 대한 자세한 내용은 홈페이지 내 부대시설 메뉴에서 확인하실 수 있습니다.
  2. 베이비크립은 선착 순으로 제공되며 조기 마감될 수 있습니다.
  3. 일부 객실에는 환경을 위한 라한 다회용 어메니티 5종이 비치되어 있습니다. (샴푸, 컨디셔너, 바디워시, 바디로션, 핸드워시)
객실 정상요금가(Room Tariff)는 다음과 같습니다. 자세히보기

도면보기

호텔찾기